Marienzeile, Nürnberg
Bauvorhaben:
Neubau eines Gebäudeensembles für Büroflächen mit Tiefgarage und Einzelhandel
Bauherr:
aurelis Real Estate GmbH & Co. KG
Architekt und Auftraggeber:
KSP Jürgen Engel Architekten GmbH
Neubau eines Gebäudeensembles für Büroflächen mit Tiefgarage und Einzelhandel
Bauherr:
aurelis Real Estate GmbH & Co. KG
Architekt und Auftraggeber:
KSP Jürgen Engel Architekten GmbH
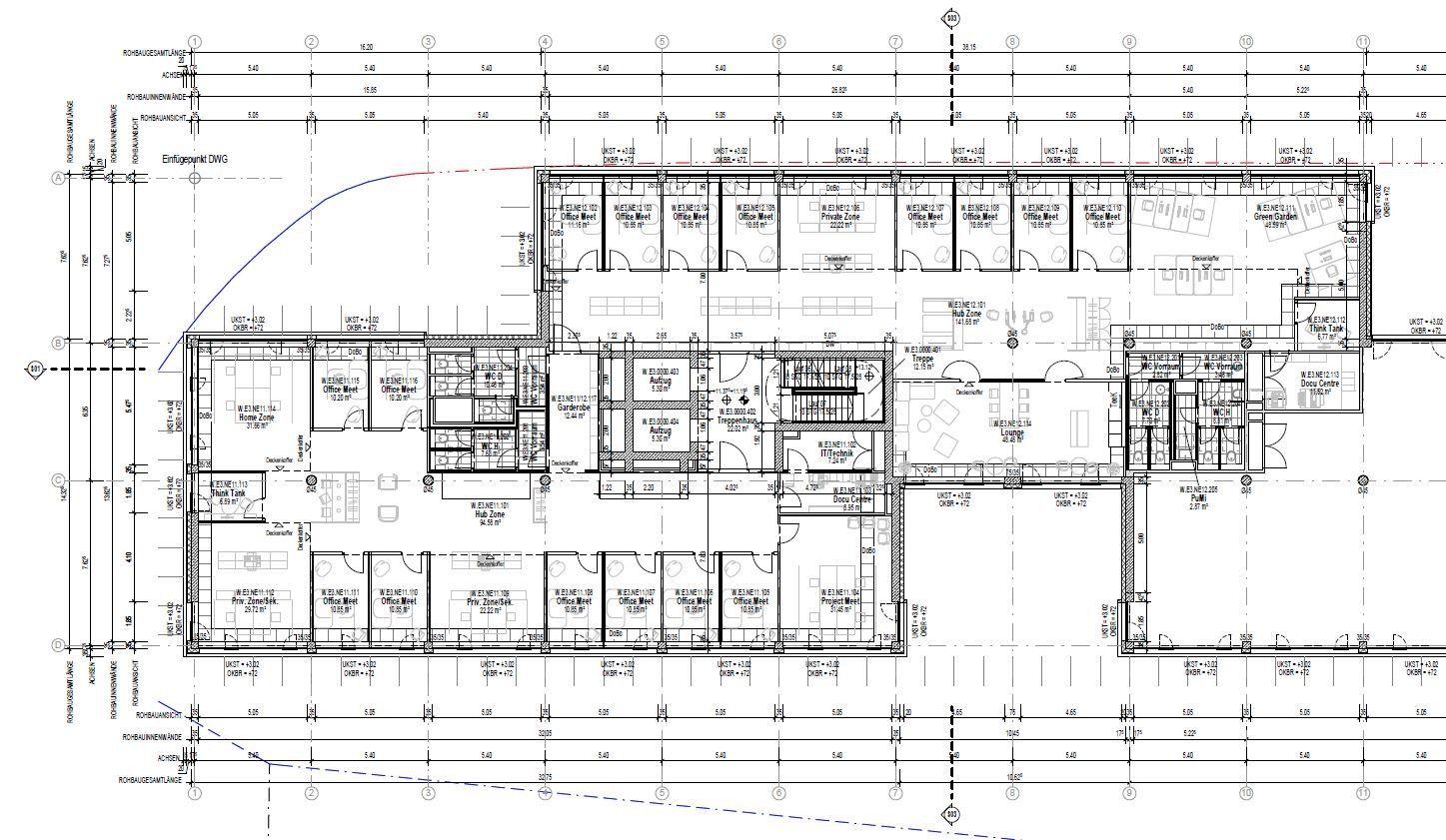
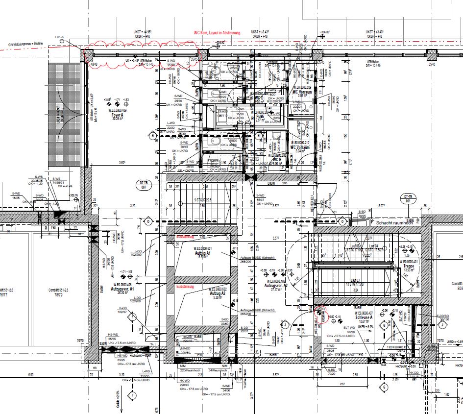
BAUTEIL 1
Grundfläche: 3.464 m²
Mietfläche: ca. 9.100 m²
Bürofläche: 8.431 m²
BAUTEIL 2
Grundfläche: 3.219 m²
Mietfläche: ca. 6.500 m²
Bürofläche: 6.670 m²
BAUTEIL 3
Grundfläche: 4.225 m²
Mietfläche: ca. 9.500 m²
Bürofläche: 8.600 m²
BAUTEIL 4
Grundfläche: 1.822 m²
Mietfläche: ca. 3.500 m²
Bürofläche: 3.350 m²
unsere Leistungen für LPH 2-5:
- Projektorganisation und Projektaufbau mit Autodesk Revit
- CAD/BIM Projektablaufplan und Projektpflichtheft
- Ausarbeitung von Bibliotheken und Skripten
- Schulung der Projektmitarbeiter
- Interner Support bei Fragestellungen und Problemlösungen
- Sicherung der Planungsqualität, Datenqualität
















